✖
Закрыть
-
Мебельная фурнитура
- Замки мебельные
- Зеркалодержатели
- Крепёж и заглушки
- Крючки мебельные BOYARD
- Внутреннее наполнение для кухни
- Навесы кухонные
- Опоры, подпятники
- Петли мебельные
- Подъемные механизмы
- Полкодержатели
- Ручки мебельные BOYARD
- Трубы
- Ящики и направляющие
Назад
- Мойки кухонные
- Столешницы и комплектующие
- Кромка для столешниц
- Мебельные щиты
- Планки для мебельных щитов
- Планки для столешниц
- Пристеночный бортик
- Столешницы
Назад
- Профиль Алюминиевый
- Распашная система
- Классический профиль
- Узкопрофильная система Минималист
- Фасадный алюминиевый профиль Premial
- Подвесная система
- Подъемные механизмы
- Уплотнители
- Шлегель
Назад
- Бытовая техника Oasis
- Варочные панели
- Духовые шкафы
- Комплектующие и аксессуары
- Кухонные вытяжки
- Микроволновые печи
- Посудомоечные машины
- Мелкая бытовая техника
Назад
- Комплектующие для шкафов
- Вешало-штанга, крепления
- Каркасно-модульная система "ЛОФТ"
- Комплектующие, шлегель
- Корзины для белья откидные
- Корзины сетчатые
- Наполнение для шкафов-купе
- Обувницы
- Полки сетчатые
- Система хранения Home Space
- Стойки, крепления
- Уголки монтажные
Назад
- Компакт-плита HPL
- Универсальная фурнитура
- ЛДСП/МДФ
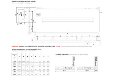
КАТАЛОГ ТОВАРОВМебельная фурнитура Мойки кухонные Столешницы и комплектующие Профиль Алюминиевый Бытовая техника Oasis Комплектующие для шкафов Компакт-плита HPL Универсальная фурнитура ЛДСП/МДФ Мебельное освещение / розетки Опоры и подстолье Ручка профиль GOLA Система Joker Цокольные системы0КАТАЛОГ ТОВАРОВКАТАЛОГ ТОВАРОВВладивостокВыберите ближайший к Вам складМетабокс H=150мм, L=450мм, белый, MB15001W/450 ВЫВОДХарактеристикиОписаниеПод заказ НетАртикул 25808Базовая единица штВысота (мм) 150 ммДлина (мм) 450 ммАмортизатор: Нет
Монтажная длина: 450 мм
Тип выдвижения: Неполное
Тип конструкции: Роликовые с металлическими боковинами
Высота стенки: 150 мм
Цвет: Белый
Несущая способность (на пару): до 20 кг
Минимальная высота проёма: 174 мм
Сегмент: Эконом
Стандарт: Базовый
Кол-во в упаковке: 10
(аналог 21331)Код товара:Добавить в избранное
25808 В наличии
Способы оплаты:
Оплата в офисе (наличными, безнал.) Банковский перевод для ИП, ООО Онлайн-оплата (Visa, MasterCard, Мир)
Способы доставки:
По городу: 1000 руб.
Самовывоз: ул.Волжская, 1, стр.15
КалькуляторыПродажа мебельной фурнитуры
и комплектующих во Владивостоке
ИП Спицын А.А
ИНН 280113811158
ОГРНИП 305280129000038
Р/С 40802810903000002353
БИК 040813608
ДАЛЬНЕВОСТОЧНЫЙ БАНК ПАО СБЕРБАНКВарианты оплаты

Оставляя заявку на сайте mf-group.ru,
Вы даете свое согласие на обработку
персональных данных и соглашаетесь
с политикой конфидециальности.Адресг.Владивосток, ул.Волжская, 1, стр.15
Режим работыПн. – Пт.: с 9:00 до 18:00КонтактыПродажа мебельной фурнитуры
и комплектующих во Владивостоке
ИП Спицын А.А
ИНН 280113811158
ОГРНИП 305280129000038
Р/С 40802810903000002353
БИК 040813608
ДАЛЬНЕВОСТОЧНЫЙ БАНК ПАО СБЕРБАНКВарианты оплаты

Оставляя заявку на сайте mf-group.ru,
Вы даете свое согласие на обработку
персональных данных и соглашаетесь
с политикой конфидециальности.Адресг.Владивосток, ул.Волжская, 1, стр.15
Режим работыПн. – Пт.: с 9:00 до 18:00Контакты
Продажа мебельной фурнитуры
и комплектующих во Владивостоке
Адресг.Владивосток, ул.Волжская, 1, стр.15
Режим работыПн – Пт
с 9:00 до 18:00КонтактыВарианты оплаты

Оставляя заявку на сайте mf-group.ru,
Вы даете свое согласие на обработку
персональных данных и соглашаетесь
с политикой конфидециальности.ИП Спицын А.А
ИНН 280113811158
ОГРНИП 305280129000038
Р/С 40802810903000002353
БИК 040813608
ДАЛЬНЕВОСТОЧНЫЙ БАНК ПАО СБЕРБАНК© 2018-2026 Интернет-магазин МФ-Групп. Все права защищены

+7 (423) 207-01-01
+7 (984) 197-01-01